网站首页
关于我们
走进新铝
企业文化
资质荣誉
董事长致辞
领导关注
组织架构
新闻中心
最新公告
企业快讯
新铝风采
市场活动
产品展示
铝合金门窗系列
铝合金幕墙系列
铝单板
光伏能源系列
石材挂件系列
通用型材系列
生产设备
工程案例
铝材标准
招贤纳士
招聘专区
诚招代理
联系我们
P
RODUCT
产品展示
铝合金门窗系列
铝合金幕墙系列
铝单板
光伏能源系列
石材挂件系列
通用型材系列
您现在的位置:
首页
>>
产品展示
>>
铝合金幕墙系列
铝合金幕墙系列
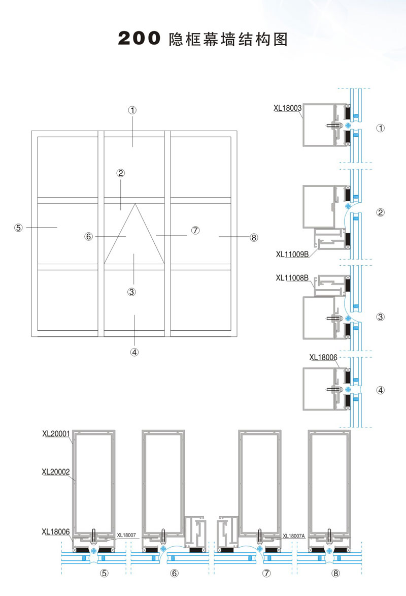
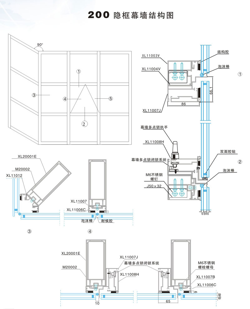
200系列幕墙
2016-07-11 18:46:26
点击数:
5397
(Top) 返回页面顶端
上一篇:
170系列幕墙
在线客服
在线咨询
在线咨询
咨询电话:
0991-5511118
13379785019
关注微信